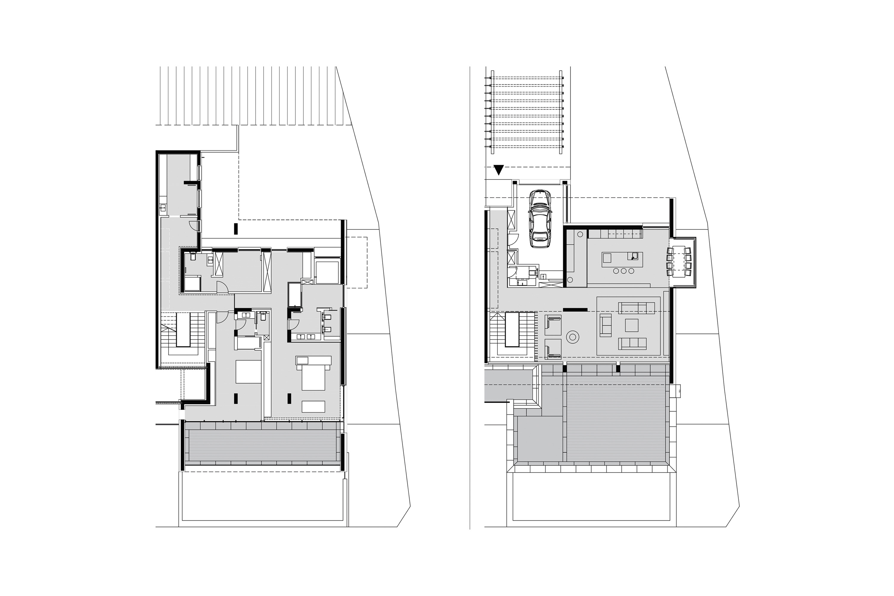
dealul melcilor loft
Project team:
arh. Ion Popusoi
carh. Bogdan Preda
Date: 2022
Place: Brasov. Emil Garleanu street
Status: Built
Total Area: 400 sqm
Photo: Arthur Tintu, Radu Malasincu
Awards
Nomination at the Bucharest Architecture Annual.
https://www.anuala.ro/proiecte/2019/068/
















