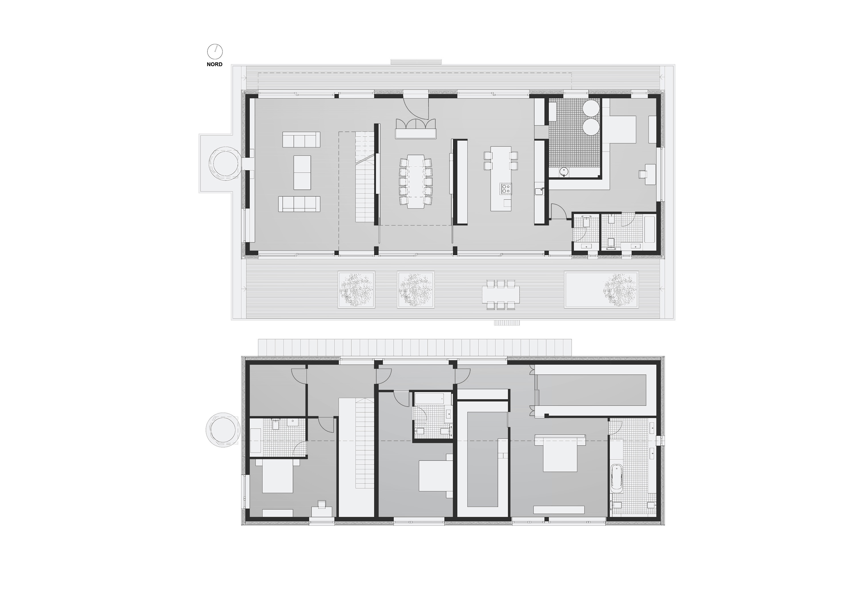
The house with masonry chimney






Project team:

 arh. Ion Popusoi

carh. Bogdan Preda


Date: 2015-2016

Place: Bucharest

Status: Built

Total Area: 250 sqm