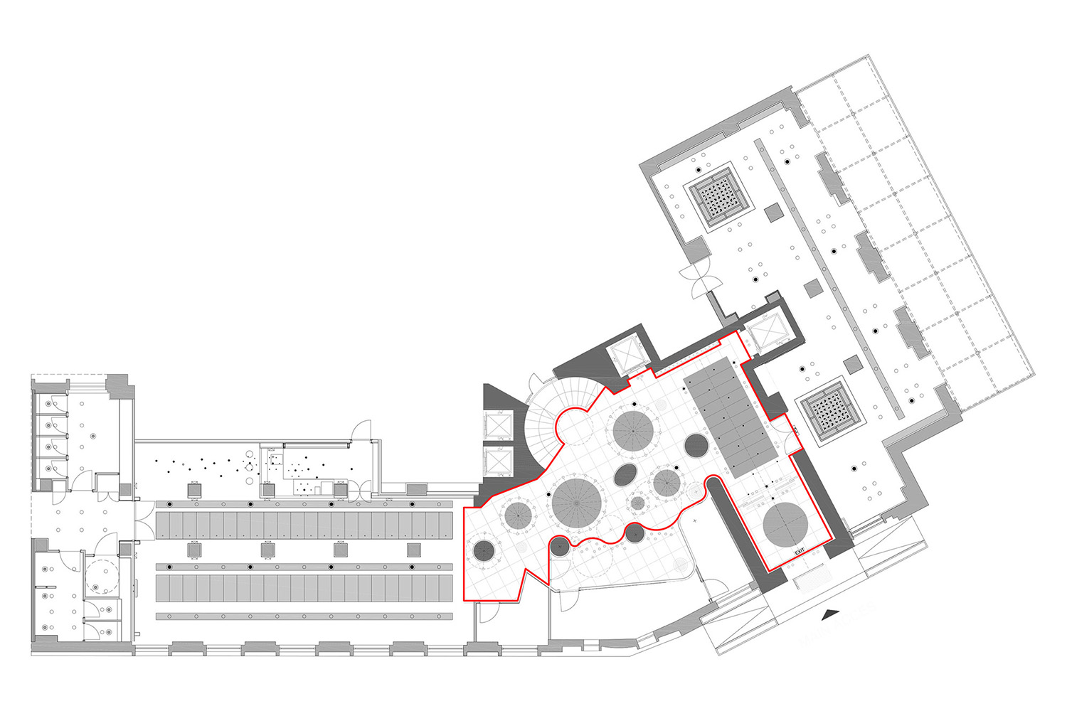
hotel minerva interior design
arh. Ion Popusoi
Date: 2007-2008
Place: Manu 2-4 street, Bucharest
Status: Built
Total Area: 600 sqm
Photo: Cosmin Dragomir, Ion Popusoi